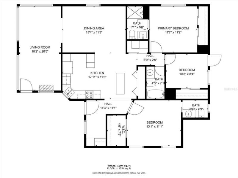
This is a beautiful Waterfront home. NEW BOAT DOCK/LIFT with roof. Welcome to Caribbean Isles Residential Cooperative. This home is a large 3-bedroom, 2 baths home open floor plan with a large eat-in Kitchen that has a new Reverse Osmosis unit under the kitchen sink, and the home also has a water filtration system to remove the HARD Water. The Laundry is just off the Kitchen in a separate room. The Primary Bedroom has a large Walk-in Closet with an Ensuite. The home offers a split bedroom floor plan. Great Screened Patio to just sit and watch the world go by. The home is low maintenance and well-maintained. Caribbean Isles Residential Cooperative is a highly desired community to live in. It is a VERY Active 55+ community. From Shuffleboard and Bocce Ball to Corn Hole and Horseshoes. We welcome Golf Carts and several times a year we gather and decorate for Parades. The Clubhouse is used for Dances, Games, Dinners and more. In the Clubhouse we have a well-stocked Library and a large Craft Room. The Game Room has 3 Billiard Tables, 2 Poker Tables, a Bar Shuffleboard with 2 Dart Boards. Don’t miss this opportunity!!
| Welcome to Your Slice of Paradise! LOCATION * LOCATION * LOCATION More Pictures are coming soon! Discover waterfront living at its best in Caribbean Isles, a vibrant 55+ gated community in beautiful Apollo Beach, Florida. This charming 2-bedroom, 2-bath, Open Floor plan home is perfectly situated in one of the community’s most desirable waterfront locations, offering both comfort and coastal style. Step inside to an open floor plan designed for easy living and entertaining. The primary suite features its own private ensuite with a relaxing soaking tub and separate shower. Enjoy the perfect retreat after a day on the water. Just outside your back door, you’ll enjoy direct canal access to Tampa Bay, ideal for boating, kayaking, or simply unwinding as manatees and dolphins glide past. Don’t miss the Virtual Tour to truly appreciate the breathtaking water access and serene views this home offers. Be sure to click on the Virtual Tour to fully appreciate the incredible water access this home offers! But the lifestyle here is just as impressive as the home itself. Caribbean Isles offers everything an active adult could want: Direct water access for kayaking and boating, heated pool open year-round (80+ degrees), friendly games of bocce ball, shuffleboard, and horseshoes. Enjoy a lively clubhouse with a craft room, game room, billiards, darts, and bar shuffleboard and a calendar full of events, themed dinners, and dances to keep you entertained and connected. Located conveniently between Tampa and Sarasota/Bradenton, you’re just a day trip away from world-class beaches, shopping, dining, and amusement parks, making every day feel like a vacation. |
Discover relaxed Florida living in the highly desirable Caribbean Isles Residential Cooperative, a 55+ waterfront community known for its friendly atmosphere and active lifestyle. Built in 2023, this 2-bedroom, 2-bath home offers the benefits of modern construction with a warm, comfortable feel. Inside, you’ll find a bright and open layout with high ceilings, vinyl flooring throughout, and plenty of windows that allow natural light to fill the space. The kitchen flows easily into the living and dining areas, making it ideal for both everyday living and entertaining. The primary bedroom includes a private en-suite bath, creating a peaceful retreat, while the second bedroom is perfect for guests. Step outside and enjoy beautiful sunsets from your front porch, a perfect spot to unwind at the end of the day. An extra large covered carport provides generous parking and storage space. The home is conveniently located within a short walk to the clubhouse and community amenities. Caribbean Isles offers exceptional amenities for residents who enjoy staying active and social. Take advantage of the kayak and boat launch with direct canal access to Tampa Bay, relax in the heated year-round pool, or enjoy classic Florida pastimes like bocce ball, shuffleboard, and horseshoes. The clubhouse features a craft room, game room, pool tables, card tables, indoor shuffleboard, and darts, along with a full calendar of community events, dinners, and dances throughout the year. Ideally situated between Tampa and Sarasota/Bradenton, this location offers easy access to shopping, dining, beaches, and day-trip adventures. If you’re looking for a newer home in a welcoming waterfront community, this one is well worth a look. Come see why so many residents are proud to call Caribbean Isles home.
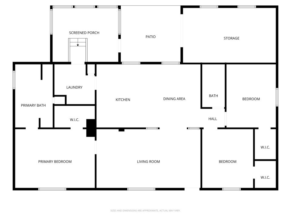
VALUE PRICED — Move-In Ready & Fully Furnished! Welcome to Caribbean Isles, a vibrant 55+ waterfront, gated community in the heart of Apollo Beach, where friendly neighbors, resort-style amenities, and endless activities create an inviting place to call home. This beautifully maintained and fully furnished 3-bedroom, 2-bath residence offers exceptional comfort, convenience, and value. Inside, the thoughtful split floor plan provides privacy by separating the primary ensuite from the guest bedrooms. Vaulted ceilings throughout enhance the home’s open, welcoming feel. The eat-in kitchen is ideal for casual dining, while the spacious family room offers the perfect setting for relaxation or entertaining. The primary suite features three generous closets plus a private bath with two additional closets, ensuring abundant storage. Recent upgrades elevate the home even further, including a large screened porch perfect for enjoying both sunrise and sunset, a new carport, and a durable metal roof-over. Additional improvements include a new dishwasher and washing machine (2024) and a new refrigerator (2021). New stove in 2025. New vinyl siding and fresh paint. Caribbean Isles is a dream for outdoor enthusiasts, offering kayak and boat launch access directly to canal system leading to Tampa Bay. Stay active with bocce ball, shuffleboard, and horseshoes, or unwind in the heated year-round community pool. The clubhouse features a craft room, game room with pool tables, card tables, indoor shuffleboard, and darts providing endless opportunities for fun and connection. With a full calendar of community events, from themed dinners and dances to seasonal celebrations, there’s always something to enjoy. And with a prime location between Tampa and Sarasota/Bradenton, you’re just minutes from beautiful beaches, shopping, dining, and world-class attractions. Come discover why so many love calling Caribbean Isles home.
| ****VALUE PRICED**** Welcome to Caribbean Isles Residential Cooperative, a 55+, Waterfront, Resident Owned Community that stands out from many. This 3 Bed, 2 ½ Bath home offers an array of features for comfortable living. Some of the features include vaulted ceilings throughout, creating an airy and spacious atmosphere. The kitchen, with it’s eat-in area, has plenty of room. The living room, versatile in function, can be utilized as a living room or an expansive dining area. The Florida Room is surrounded by windows for maximum natural light. The Primary Bedroom features an ensuite full bathroom, while the second primary bedroom includes a convenient ensuite ½ bath, making it an ideal space for guests, separate from the main living areas. A full bath in the hallway adds to the convenience. Recent upgrades include replacement of all floors, a AMS weather-lok roof-over system that has a Limited lifetime warranty. Beyond the house, explore the community’s outstanding Resort Style Amenities. Outdoor enthusiasts will appreciate the kayak and boat launch facilities, with direct access to Tampa Bay through the canal system. Engage in friendly competition with bocce ball, shuffleboard courts, and horseshoes. The heated community pool offers year-round enjoyment. Indoors, the clubhouse beckons with a craft room and a spacious game room equipped with pool tables, card tables, an indoor bar, shuffleboard, and darts—perfect for fostering creativity and socializing. The community hosts a variety of activities throughout the year, from themed dinners to dances, ensuring there’s always something exciting happening to suit your preferences. Centrally located between Tampa and Sarasota/Bradenton, this community offers easy access to an abundance of nearby activities. Beaches and amusement parks are just a day trip away. We extend a warm invitation for you to visit and discover why so many have chosen to call Caribbean Isles home. |
As you step into this home, you’ll immediately feel the warmth and care that has gone into every update. The eat-in kitchen has been thoughtfully designed with high-end cabinets, upgraded countertops, and modern appliances, making meal prep both enjoyable and efficient. A convenient coffee and food bar, surrounded by extra cabinetry, provides great storage and a cozy spot to start your day. The bedrooms and bathroom have been tastefully updated, creating comfortable and inviting spaces to relax. The Florida room and screened-in lanai stretch across the entire width of the home, offering the perfect setting for quiet mornings, friendly gatherings, or simply unwinding at the end of the day. And when evening comes, the west-facing covered deck is the ideal place to take in stunning sunsets. Recent updates ensure peace of mind, including a new HVAC system, updated supply and returns, new ductwork, and a vapor barrier. For those who love the outdoors, the community offers kayak and boat launch facilities with direct access to Tampa Bay. If you enjoy staying active, you’ll appreciate the bocce ball and shuffleboard courts, horseshoes, and a heated pool that’s open year-round. Inside the clubhouse, there’s always something to do, whether it’s crafting, playing a game of pool, or joining neighbors for a friendly card game. Life here is about more than just a home, it’s about community. With year-round activities, themed dinners, and social gatherings, there’s always an opportunity to connect, have fun, and feel at home. Located between Tampa and Sarasota/Bradenton, you’ll have easy access to beaches, shopping, dining, and entertainment. Whether you’re looking for adventure or relaxation, you’ll find it here. Come visit and see for yourself why so many love calling Caribbean Isles home!
MOTIVATED SELLER! This charming WATERFRONT property offers access to Tampa Bay via the Canals. This community has a Professional Management Company with a professional contact in the office daily This community boasts an endless array of social activities and is 55+ resident owned community. This home offers SPLIT FLOOR PLAN, 2 bedroom 2 bath, each of the bedrooms are at opposite ends of the home for maximum privacy when guests visit. The kitchen has UPDATED cabinets, solid surface countertops, a dishwasher, microwave, double sinks and a double door refrigerator with ice maker. This home boasts an enclosed FLORIDA ROOM, and an OPEN AIR PORCH. It’s Florida and who wants to stay inside all day? You can launch your boat from the Community Boat Launch and pick up the family and away you go on a day full of fun on the water. Or store your boat in the RV/Boat storage lot for a more than reasonable Annual Rate. Outside the clubhouse we have a heated pool for your year round enjoyment. The large Clubhouse offers a library, craft and game rooms, and a large meeting area for the dinners and dances which are sponsored throughout the year. Activities include bingo, card games, an annual talent show, Penny Social, guest entertainers, holiday dinners prepared in the full service kitchen, and live band performances. Caribbean Isles, a resident-owned cooperative, located near I 75 with great access to 3 major airports. Tampa, St Petersburg and Sarasota/Bradenton. Don’t miss the opportunity for your slice of paradise.
Price Improvement! Motivated Seller! Welcome to Caribbean Isles Residential Cooperative. This home is a 3 bedroom, 2 bath home. Very Nice Kitchen with Island Cooktop. The Primary Bedroom has a large Walk-in Closet with an Ensuite. One Bedroom has been converted to an office. Great Screened Patio to just sit and watch the world go by. The home is low maintenance and well-maintained. Caribbean Isles Residential Cooperative is a highly desired community to live in. It is a VERY Active 55+ community. From Shuffleboard and Bocce Ball to Corn Hole and Horseshoes. We welcome Golf Carts and several times a year we gather and decorate for Parades. The Clubhouse is used for Dances, Games, Dinners and more. In the Clubhouse we have a well-stocked Library and a large Craft Room. The Game Room has 3 Billiard Tables, 2 Poker Tables, a Bar Shuffleboard with 2 Dart Boards. Don’t miss this opportunity.
Welcome to Caribbean Isles, a vibrant 55+ gated waterfront community where friendly neighbors and resort-style amenities make every day feel like a vacation! This charming 2-bedroom, 1-bath home is truly move-in ready and filled with updates that providing peace of mind. Don’t let its age fool you, recent upgrades include a new roof, HVAC system with updated ductwork, washer and dryer, and a brand-new carport. Inside, natural light fills the living room and hallway, highlighting the stylish laminate flooring. The spacious primary bedroom easily accommodates a king-sized bed and boasts 10 feet of in-wall closets for all your storage needs. Love the outdoors? You’ll feel right at home here! Launch your kayak or boat from our private facilities and explore the scenic canal system with direct access to Tampa Bay. Prefer to stay on land? Join a friendly game of bocce ball, shuffleboard, or horseshoes. When it’s time to unwind, take a dip in our heated year-round pool or head to the clubhouse, where you’ll find a craft room, game room, pool tables, card tables, bar shuffleboard, and darts—perfect for socializing and having fun. There’s always something happening in Caribbean Isles! Our community events and activities range from themed dinners and dances to exciting social gatherings that make it easy to connect with neighbors and enjoy an active lifestyle. And let’s not forget the unbeatable location located between Tampa and Sarasota/Bradenton, you’re just a short drive from stunning beaches, world-class dining, shopping, and thrilling amusement parks. Come see for yourself why so many call Caribbean Isles home.

FIXER-UPPER 55+ Waterfront gated community with no HOA or CDD’s. This home is being sold “AS IS WHERE IS”. The home has been vacant for about 2 years. 2 Bedroom- 1 Bath. The home suffered minor damage from the hurricanes. With a Share Value of $80,000 this could be a great buy, to refurbish or remove and replace with a new home. Some of the finest outdoor amenities are here to keep you as active as you want to be. Some of the amenities include year-round heated pool, kayak launch, and a boat launch. There is a separate storage lot for boats and trailers (for fee), bocce-ball, shuffleboard, and horseshoes. Inside, the clubhouse has many amenities including a large area for gatherings, dances, bingo, and of course pot-luck dinners to mention a few. Large game room including bar shuffleboard, darts, card table and 3 pool tables. Separate crafting room for ceramics (2 large kilns), quilting and other crafting. There are regular outside the park activities to keep you on the go. Come see why the Caribbean Isles in Apollo Beach is such a wonderful place to live.